Jedyna taka okazja. Gotowy projekt luksusowej rezydencji w sercu wrocławskich Karłowic.
Działka o powierzchni 916 m² z istniejącym domem do modernizacji oraz prawomocnym pozwoleniem na realizację nowoczesnej willi 361 m². Dom na sprzedaż Wrocław w prestiżowej lokalizacji. Nieruchomość Karłowice gotowa do rozpoczęcia od zaraz.
Wyjątkowa Działka
900 m² prywatności i zieleni w najbardziej pożądanej części Karłowic. Przestrzeń, która daje oddech i nieograniczone możliwości aranżacji ogrodu marzeń. Działki tej wielkości w tej lokalizacji praktycznie nie pojawiają się już na rynku.
Gotowy Projekt 361 m²
Nowoczesny, przemyślany projekt rezydencji o powierzchni 361 m², który maksymalizuje potencjał działki i gwarantuje komfort na najwyższym poziomie. Projekt stworzony z myślą o najbardziej wymagających gustach.
Prawomocne Pozwolenie
Najcenniejszy atut oferty – prawomocne pozwolenie na budowę. Oszczędzasz do 3 lat na formalnościach i ryzyku. Kupujesz pewność i możesz rozpocząć budowę niemal natychmiast.
Architektura na miarę Twoich ambicji.
Projekt rezydencji przy Krasickiego 31 to synteza nowoczesnego designu i funkcjonalności, wkomponowana w historyczny charakter Karłowic. Duże przeszklenia otwierają dom na otaczającą zieleń, a przemyślany układ pomieszczeń zapewnia idealny balans między strefą dzienną a prywatną.
361 m²
Powierzchnia użytkowa
3
Liczba kondygnacji
Pełne Media
Prąd, kanalizacja, woda, ogrzewanie miejskie, światłowód.
2
Miejsca w garażu
4-5
Sypialni / Gabinetów
Starodrzew
Dojrzałe drzewa na działce – wyjątkowy klimat.
Powierzchnie – przed i po przebudowie
| Kondygnacja | W stanie obecnym | Po przebudowie |
|---|---|---|
| Piwnica | 93,51 m² | 143,04 m² |
| Parter | 76,51 m² | 110,27 m² |
| Piętro | 73,94 m² | 108,27 m² |
| Łącznie | 243,96 m² | 361,58 m² |
Wizualizacje Zewnętrzne
Wizualizacje Wewnętrzne
Rzuty Techniczne
Rzut Parteru
Układ pomieszczeń parteru z salonem, kuchnią i jadalnią
Rzut Piętra
Układ sypialni i pomieszczeń prywatnych
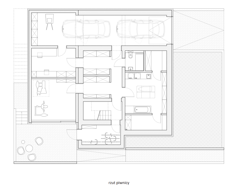
Rzut Piwnicy
Przestrzeń techniczna i garaż
Lokalizacja i Działka
Oferta Sprzedaży
Wyjątkowa okazja inwestycyjna w prestiżowej lokalizacji
Cena nieruchomości
2 650 000
złotych
Przepisanie własności
Od stycznia 2026
Terminowa dostępność nieruchomości
Co otrzymujesz?
- • Działka 916 m² z wolnostojącym domem
- • Prawomocne pozwolenie na przebudowę
- • Kompletny projekt
- • Dokumentacja techniczna
Cena obejmuje działkę z prawomocnym pozwoleniem na budowę, kompletną dokumentacją projektową oraz istniejący budynek
Karłowice to więcej niż adres. To symbol, synonim spokoju, zieleni i ponadczasowej elegancji. Luksusowa nieruchomość Wrocław w dzielnicy-ogród zaprojektowanej z myślą o harmonii między architekturą a naturą, dziś stanowi enklawę dla tych, którzy cenią sobie prywatność bez rezygnacji z bliskości centrum miasta. Willa Karłowice w prestiżowej lokalizacji.
- ✓ 5 minut spacerem do Parku Jana Kasprowicza.
- ✓ Szybki dojazd do Placu Grunwaldzkiego i ścisłego centrum.
- ✓ Pełna infrastruktura: renomowane szkoły, kameralne kawiarnie i sklepy.
- ✓ Sąsiedztwo historycznych willi, co gwarantuje utrzymanie wartości i prestiżu.
Kalendarz Rezerwacji
Kliknij poniżej, aby otworzyć kalendarz i wybrać termin wizyty
Otwórz Kalendarz RezerwacjiInformacje o wizycie:
- • Prezentacja trwa około 30-45 minut
- • Możliwość obejrzenia działki i dokumentacji projektu
- • Odpowiedzi na wszystkie pytania dotyczące nieruchomości
- • Bezpłatna konsultacja bez zobowiązań